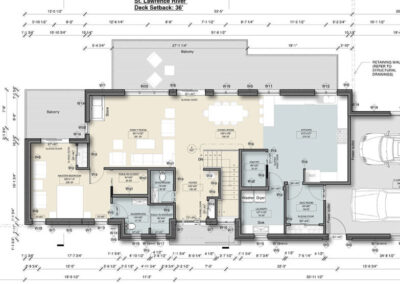
BUILDING AND INTERIOR DESIGN
Two-Storey River View House
Category
Building and Interior Design
Location
River Frontage
Description
Architectural and engineering solutions for soft-soil foundations and flood-resistant design for high-value waterfront properties.


PROJECT GALLERY
Project Drawings
Explore Our Project Portfolio
Dive into our collection of successful projects and see how Asterisk Engineering Corporation transforms ideas into reality. Discover the artistry and precision behind each design.









