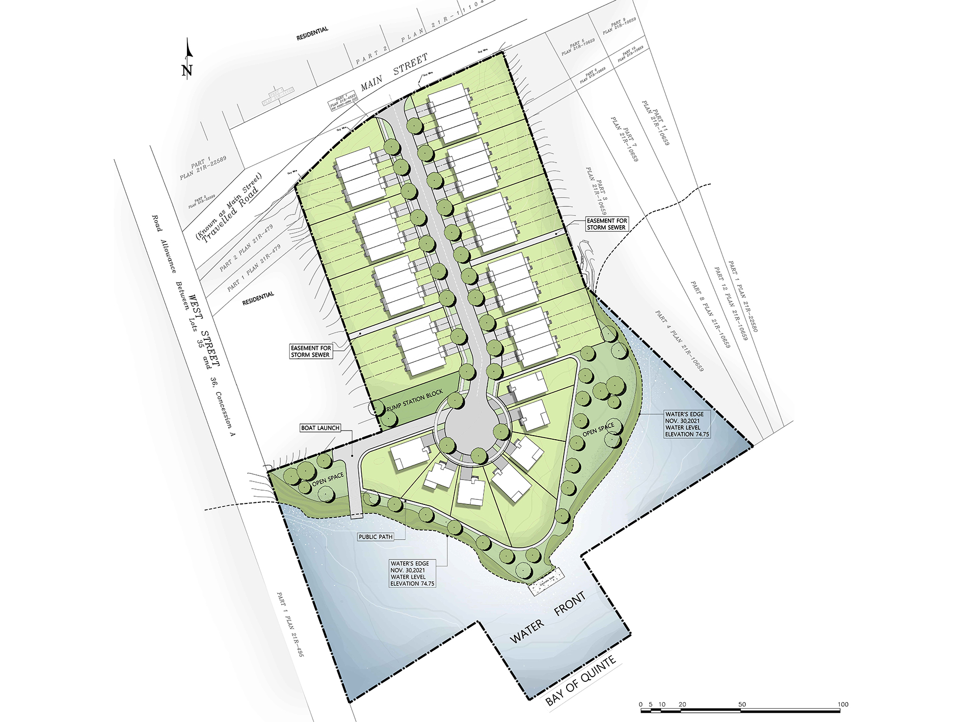
MUNICIPAL SUBDIVISION
West Main St, Deseronto Subdivision
Location
West Main St, Deseronto , ON
Description
Year: 2021
Area: 10.5 Acre

PROJECT GALLERY
Project Photography
PROJECT GALLERY
Project Drawings
Explore Our Project Portfolio
Dive into our collection of successful projects and see how Asterisk Engineering Corporation transforms ideas into reality. Discover the artistry and precision behind each design.





