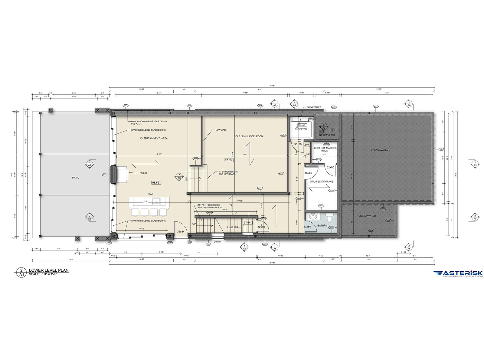
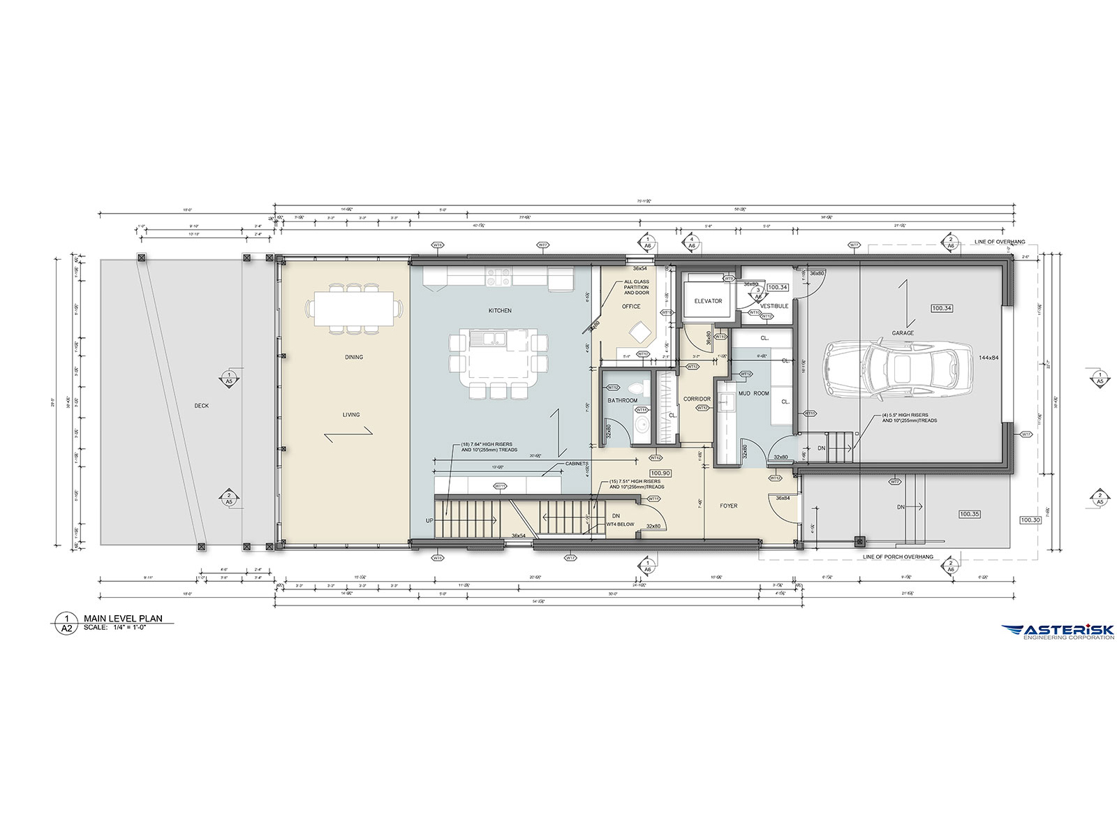
BUILDING AND INTERIOR DESIGN
Three-Storey Custom Home
Category
Building and Interior Design
Location
Kingston, ON
Description
Area: 633 SQ.M
Year: 2022

PROJECT GALLERY
Project Photography
PROJECT GALLERY
Project Drawings
Explore Our Project Portfolio
Dive into our collection of successful projects and see how Asterisk Engineering Corporation transforms ideas into reality. Discover the artistry and precision behind each design.












