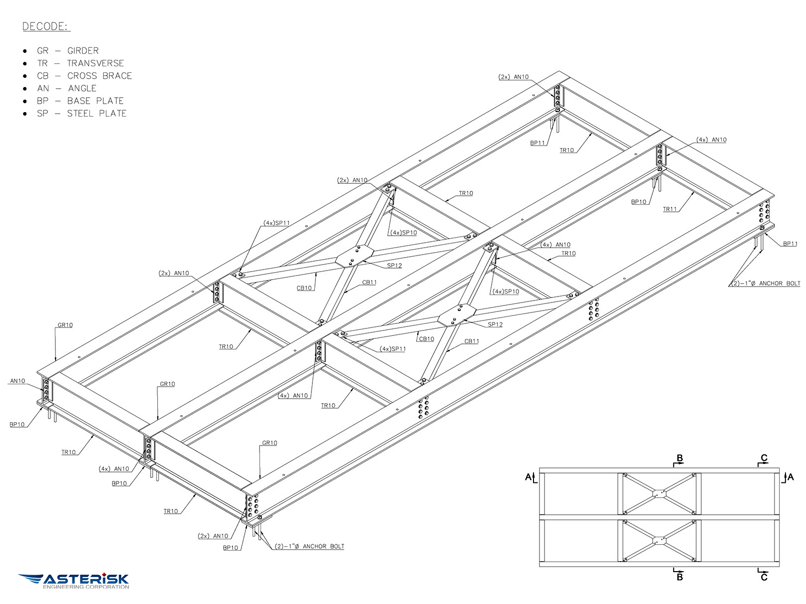
STRUCTURAL ENGINEERING
Bridge over Creek
Category
Structural Engineering
Location
Arden, Ontario
Description
Year: 2021

PROJECT GALLERY
Project Drawings
Explore Our Project Portfolio
Dive into our collection of successful projects and see how Asterisk Engineering Corporation transforms ideas into reality. Discover the artistry and precision behind each design.







